Sanitarni kontejner ARK 102
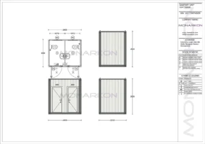
Sanitarni kontejner ARK 102 površine 2,45 m² (dimenzije: 240 cm × 200 cm), optimiziran je za higijenske potrebe na lokacijama s višim prometom. Opremljen je sa dva WC-a i dva umivaonika, svaki s odvojenim ulazom, što doprinosi boljoj organizaciji i praktičnosti. Idealno je rješenje za sportske terene, gradilišta, privremene kampove ili mobilne urede gdje je potrebno odvojiti sanitarne puteve između korisnika.
Konstrukcija je otporna i izdržljiva — izrađena s podnim okvirima od čelika debljine 3 mm, sendvič panelima 60 mm, te visokokvalitetnom završnom obradom i izolacijom.
Sanitarni kontejner karakteristike
-
Modularni sistem – brza montaža, bez zavarivanja
-
Konstrukcija: čelik 3 mm + pocinčane grede
-
Zidovi: sendvič paneli 60 mm za vrhunsku izolaciju
-
Obloge: pocinčani/obojeni lim 0,50 mm
-
Prozori: U-PVC okviri s dvostrukim staklom
-
Završna obrada: profesionalno farbanje
Preporuka za ARK 102
Preporučujemo ARK 102 kada vam treba kompaktna, ali učinkovita sanitarna jedinica koja omogućava simultanu, odvojenu upotrebu. Idealna za logističke baze, događaje na otvorenom ili radne zone gdje treba brzo i čisto sanitarno rješenje.
Karakteristika | Detalji |
---|---|
Dimenzije | 240 cm × 200 cm |
Površina | 2,45 m² |
Zidovi | Sendvič paneli 60 mm |
Konstrukcija | Čelik 3 mm + pocinčane grede |
Obloge | Čelični lim 0,50 mm |
Prozori | U-PVC okviri, dvostruko staklo |
Unutrašnjost | Dva WC-a + dva umivaonika, bez pregrada |
Završna obrada | Kvalitetno farbanje |
Izvor | Službena stranica Monarkon |
Stručni resursi i standardi
Preporučeni tehnički i normativni izvori:
Modularni objekti – praktičan i efikasan prostor
Modularni kontejner ARK 102 nudi brzu postavu i fleksibilnu uporabu u svakom terenu. Njegova izdržljivost i kvalitetni materijali osiguravaju pouzdanost i dugotrajnost čak i u zahtjevnim uvjetima.
ARK 102 – Kompaktno sanitarno rješenje za svaki teren
Model ARK 102 iz ponude Monarkon sanitarnih kontejnera predstavlja praktično i brzo upotrebljivo rješenje kada je potreban osnovni higijenski čvor na terenu. Sa ukupnom površinom od 2,45 m², ovaj kontejner uključuje WC i umivaonik, smještene unutar funkcionalnog rasporeda koji maksimalno iskorištava raspoloživi prostor. Idealan je za gradilišta, privremene kampove, događaje na otvorenom ili bilo koju lokaciju gdje su higijenski uvjeti nužni, a prostor ograničen.
Kao i svi Monarkon proizvodi, ARK 102 izrađen je od kvalitetnih materijala otpornih na vlagu i mehanička oštećenja, uz vrhunsku termoizolaciju zahvaljujući sendvič panelima debljine 60 mm. Modularna konstrukcija omogućava brzu montažu bez zavarivanja, što olakšava postavljanje i premještanje.
Proizveden u Bosni i Hercegovini, ARK 102 se može prilagoditi vašim potrebama – od odabira boje, preko dodatne opreme, do izmjene unutrašnjeg rasporeda. Svojom jednostavnošću, izdržljivošću i estetikom, predstavlja pouzdano sanitarno rješenje za raznovrsne terenske uvjete.